服务热线
0577-62755895

更新时间:2026-03-26
访问量:55
手机号码:13968710797
电话号码:0577-62755895
传真号码:0577-62755895
电子邮箱:1605874299@qq.com
公司名称:乐清市川泰电力设备有限公司
公司地址:浙江省柳市长荣路1-7
服务热线
0577-62755895
产品分类
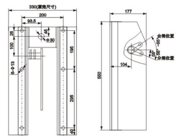
本产品可以操作各类10KV固定柜上之ZN28型户内高压真空断路器及其合闸功与之相当的其他各类 高压断路器之用。有过电流及失压脱扣保护功能,其寿机械寿命为2000次。由于该构宽宽比CT19A型有缩小,宽度仅300mm,不仅增加了机构整体的稳定性,更适宜于老柜上的无油化改造用。(该机构输出转换为50°~55°)
规格 | 重量kg | 体积 | 电坳机输入功率(W) | 合闸弹簧(mm) | 匹配真空断路器开断电流(KA) |
CT19B-Ⅰ | 38 | 550×330×180 | 110 | φ7 | 20 |
CT19B-Ⅱ | 38 | 550×330×180 | 110 | φ8 | 31.5 |
CT19B-Ⅲ | 38 | 550×330×180 | 150 | φ8+φ4 | 40 |
1.储能电机采用单相永磁直流电机,如用户需要采用交流电流电源时,则增加啬全波整流电流,(桥堆)供给储能电动机工作。
2.合分闸电磁铁采用螺管式电磁铁。
3.机构输出轴工作转动角为50~55度。
CD19B机构主要技术数据表(表内所列电阻值均为温度+20℃时数值)
额定工作电压(V) | ~110 | ~220 | ~380 | -48 | -110 | -220 | |
额定工作电流(A) | 分 | 2.8 | 1.6 | 2.3 | 1.5 | ||
合 | 1.5 | 1 | 1.5 | 0.68 | |||
额定电功率(W) | 分 | 308 | 352 | 255 | 264 | ||
合 | 105 | 220 | 165 | 150 | |||
20℃时线圈电阻值(Ω) | 分 | 12±0.6 | 48±2.4 | 48±2.5 | 190±10 | ||
合 | 20±1 | 73±4 | 73±4 | 325±15 | |||
正常工作电压范围 | 合闸:85%~110%额定工作电压 分闸:65%~120%额定工作电压,小于30%的额定工作电压时不得分闸 | ||||||