服务热线
0577-62755895

更新时间:2026-03-27
访问量:201
手机号码:13968710797
电话号码:0577-62755895
传真号码:0577-62755895
电子邮箱:1605874299@qq.com
公司名称:乐清市川泰电力设备有限公司
公司地址:浙江省柳市长荣路1-7
服务热线
0577-62755895
产品分类


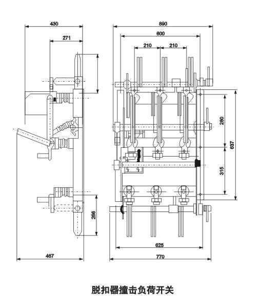
FN7-12DR型交流高压负荷开关是一种新型产气式户内高压负荷开关,适用于交流50HZ额定电压12KV的三相交流电力系统中,作为开断负荷电流及关合短路电流之用。

正常使用条件:
*周围空气温度
上限:+40℃,
下限:一般地区10℃,高寒区-25℃。
*海拔高度为1000及以下。
*相对湿度:日平均值不大于95%,月平均值不大于90%;
*周围空气应不受腐蚀性或可燃性气体及水蒸汽体等明显污染;
*无经常性的剧烈振动
额定电压(KV) | 绝缘水平 | 额定电流(A) | 额定热稳定电流(KA有效值4s) | 额定动稳定电流(KA有效值) | 额定短路关合电流(KA峰值) | |
工频50HZ耐压一分钟(KV有效值) | 雷电冲击耐压(KV有效值) | 400 | 12.5 | 31.5 | 31.5 | |
12 | 相间、相对42 | 相间、相地48 | 630 | 20 | 50 | 50 |
隔离断口48 | 隔离断口85 | |||||

