服务热线
0577-62755895

更新时间:2026-03-27
访问量:57
手机号码:13968710797
电话号码:0577-62755895
传真号码:0577-62755895
电子邮箱:1605874299@qq.com
公司名称:乐清市川泰电力设备有限公司
公司地址:浙江省柳市长荣路1-7
服务热线
0577-62755895
产品分类


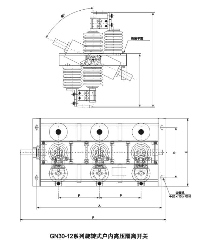
N30-12型旋转式户内高压隔离开关是一种旋转触刀式的新型隔离开关,主要 结构是在三相共底架上,下两个平面上,固定两组绉缘子及触头,通过旋转触刀,从而实现开关的分合闸。
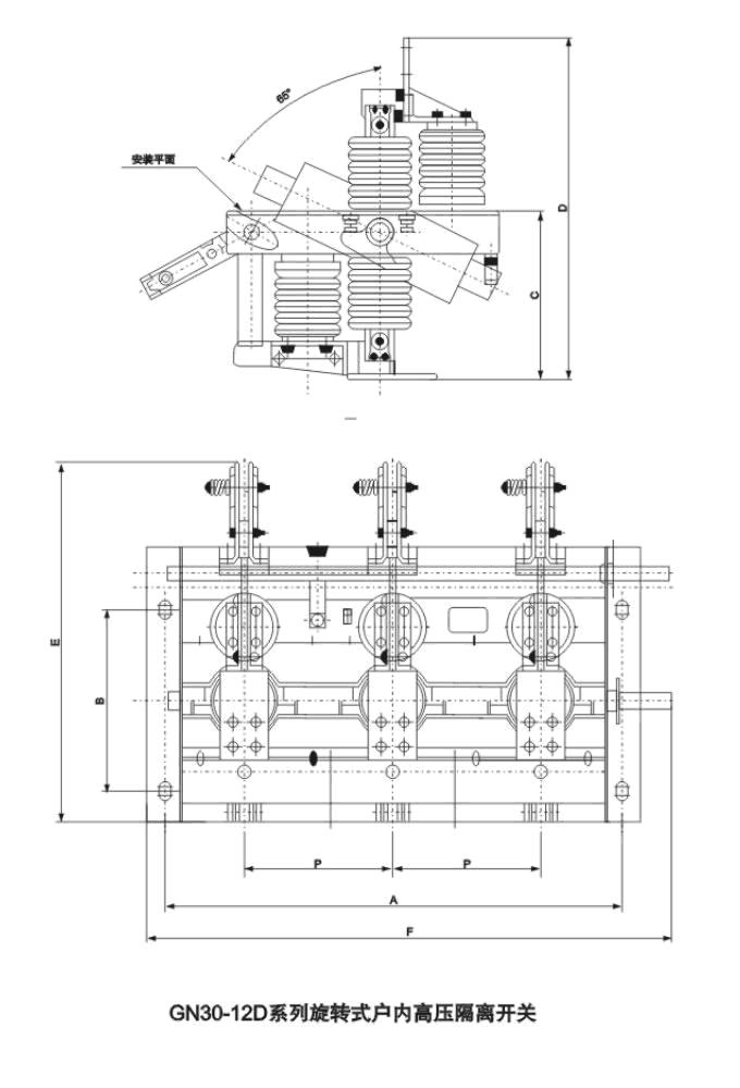
GN30-12D型开关是在GN30-12型开关基础上增加带接地刀的形式,可满足不同电力系统的需要,本产品设计贤能背 占用空间小 绝缘能力强。易于安装调整,其性能符合GB1985-89《交流高压隔离开关和接地开关》的要求,适用于额定电压12千伏交流50Hz及以下户内电力系统中,作为在有电压无负载情况下,分合电路之用。可与高压开关柜配套使用,也可单独使用。
海拔高度不超过1000m;
周围空气温度;上限+40℃;下限-10℃;
相对湿度;日平均值不大于95%,月平均不得大于90%;
地霸烈度不超过8度;
无严重粉尘 化学腐蚀性和爆 炸性物质的场所;
无经常性剧烈振动的场所在地。

产品型号规格 | GN30-12/400-12.5 | GN30-12/630-20 | GN30-12/1000-31.5 | GN30-12/1250-31.5 | |
GN30-12D/400-12.5 | GN30-12D/630-20 | GN30-12D/1000-31.5 | GN30-12D/1250-31.5 | ||
额定电压(KV) | 12 | ||||
高电压(KV) | 12.7 | ||||
额定电流(KA) | 400 | 630 | 1000 | 1250 | |
热稳定电流(KA) | 12.5 | 20 | 31.5 | ||
热稳定时间(S) | 4 | ||||
动稳定电流(KA) | 31.5 | 50 | 80 | ||
额定绝 | 雷电冲击电压(KV) | 相间 相地75 断口85 | |||
1min 工频耐压(KV) | 相间 相地42 断口48 | ||||


