服务热线
0577-62755895

更新时间:2026-03-26
访问量:69
手机号码:13968710797
电话号码:0577-62755895
传真号码:0577-62755895
电子邮箱:1605874299@qq.com
公司名称:乐清市川泰电力设备有限公司
公司地址:浙江省柳市长荣路1-7
服务热线
0577-62755895
产品分类
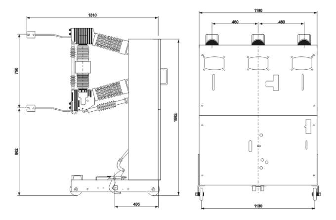
ZN23-40.5G系列车式高压真空断路器(以下简称断路器)为额定电压40.5kv、三相交流50Hz的户内高压电器设备,适用于工矿企业、变电站等输配电系统,作控制和保护开关;尤其适用于冶金、电弧炼钢等需频繁操作的行业,作为控制和保护设备。
本产品符合G1984-789《交流真空断路器》的标准。
本断路器为手车式,结构合理,维护简便,使用安全可靠。配用CD10Ⅱ型电磁操动机构或CT19Ⅱ型弹簧操动机构。
项目 | 单位 | 数据 | |
额定电压 | Kv | 40.5 | |
额定绝缘水平 | 1min工频耐压 | KV | 185 |
雷电冲击耐压(峰值) | |||
额定频率 | Hz | 50 | |
额定电流 | A | 1250/1600/2000 | |
额定短路开断电流 | KA | 20/25/31.5 | |
额定端丽耐受电流 | KA | 20/25/31.5 | |
额定峰值耐受电流 | KA | 50/63/80 | |
额定短路持续时间 | S | 4 | |
额定关合电流 | KA | 50/63/80 | |
额定操作顺序 | 分-0.3-合分-180s-合分 | ||
合闸时间 | ms | ≤75 | |
分闸时间 | ms | ≤60 | |
额定短路开断电流开断次数 | 次 | 20 | |
机械寿命 | 次 | 1000 | |
